VILLA MONOFAMILIARE SU UN LIVELLO CON PISCINA
Hai bisogno di privacy, indipendenza e vorresti abitare in una casa di nuova costruzione con tutti i comfort e i benefici di una classe energetica al top per risparmiare denaro? allora hai appena trovato la tua tanto desiderata sistemazione definitiva! ci troviamo in un contesto residenziale immerso nel verde e nella tranquillita' della campagna ma a due passi dal centro di sarzana e da tutti i suoi servizi. Il progetto ha l'obiettivo di migliorare la qualita' dell'ambiente residenziale garantendo una riduzione delle spese.
IMMOBILE DI RARA REPERIBILITA'
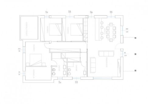
VILLA MONOFAMILIARE CON SPLENDIDA PISCINA, BOX AUTO, E GRANDE GIARDINO PRIVATO DISTRIBUITA SU UN UNICO LIVELLO. INGRESSO IN AMPIO LIVING COMPOSTO DA CUCINA, ZONA PRANZO E ZONA RELAX, 3 CAMERE DA LETTO, 2 SERVIZIO, STANZA DEGLI ARMADI, GRANDE PORTICATO.
CONSEGNA A BREVE
IMMOBILE DI RARA REPERIBILITA'
VILLA MONOFAMILIARE CON SPLENDIDA PISCINA, BOX AUTO, E GRANDE GIARDINO PRIVATO DISTRIBUITA SU UN UNICO LIVELLO. INGRESSO IN AMPIO LIVING COMPOSTO DA CUCINA, ZONA PRANZO E ZONA RELAX, 3 CAMERE DA LETTO, 2 SERVIZIO, STANZA DEGLI ARMADI, GRANDE PORTICATO.
CONSEGNA A BREVE
| Codice | 3398 |
| Categoria | Vendita/Nuova costruzione/Turistico |
| Tipologia | indipendente |
| Zona | SARZANA |
| Vani | superiore a 5 |
| MQ | 180 |
| Ascensore | No |
| Giardino/Spazio esterno | Si |
| Prezzo | € 700.000 |
| Classe energetica | A+ |
| Immobile turistico | Si |
| Nuova costruzione | Si |
