APPARTAMENTO ZONA GIARDINI
Nel cuore della zona Giardini/Centro di La Spezia, in una delle zone più ricercate e comode ai servizi, proponiamo in vendita un elegante appartamento completamente ristrutturato, situato al terzo piano di un palazzo dotato di ascensore. La casa si distingue per gli spazi generosi e per le finiture di livello, offrendo un ambiente moderno e accogliente, ideale per chi desidera vivere in pieno comfort senza rinunciare alla centralità .
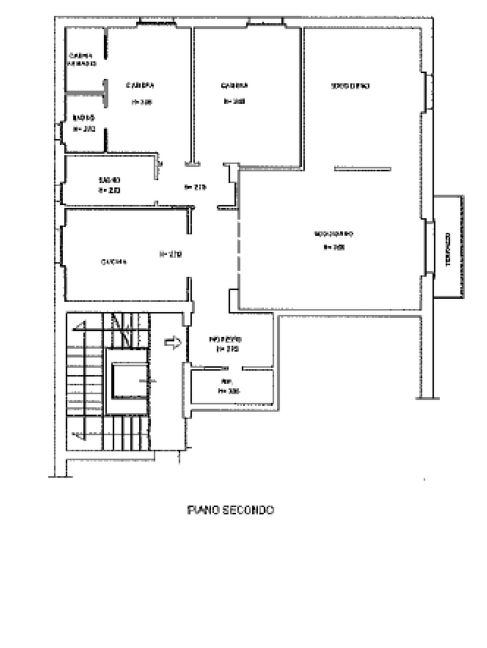
L’ingresso si apre su un luminoso soggiorno doppio diviso in zona living e zona pranzo, caratterizzato da un'esposizione angolare un comodo balcone con affaccio diretto sui giardini, che regala luce naturale durante tutto il giorno . La cucina abitabile e ben organizzata è perfetta per chi ama vivere la zona giorno in modo pratico e conviviale. La zona notte ospita due ampie camere matrimoniali, di cui una dotata di cabina armadio privata e bagno en suite e ulteriore bagno con doccia. grazie alla generosità degli spazi è possibile ricavare con facilità una terza camera. Completa la prorpietà un utile ripostiglio con zona lavanderia.
L’appartamento è dotato di riscaldamento autonomo e impianto di climatizzazione, parquet in tutte le stanze, serrande elettriche e infissi in PVC di ultima generazione, che garantiscono isolamento e comfort acustico.L'immobile è dotato inoltre di una pratica cantina
Un immobile raffinato, pronto da abitare, situato in una posizione privilegiata a pochi passi dal centro e dai principali servizi, ideale per chi cerca qualità , funzionalità e uno stile di vita confortevole.
L’ingresso si apre su un luminoso soggiorno doppio diviso in zona living e zona pranzo, caratterizzato da un'esposizione angolare un comodo balcone con affaccio diretto sui giardini, che regala luce naturale durante tutto il giorno . La cucina abitabile e ben organizzata è perfetta per chi ama vivere la zona giorno in modo pratico e conviviale. La zona notte ospita due ampie camere matrimoniali, di cui una dotata di cabina armadio privata e bagno en suite e ulteriore bagno con doccia. grazie alla generosità degli spazi è possibile ricavare con facilità una terza camera. Completa la prorpietà un utile ripostiglio con zona lavanderia.
L’appartamento è dotato di riscaldamento autonomo e impianto di climatizzazione, parquet in tutte le stanze, serrande elettriche e infissi in PVC di ultima generazione, che garantiscono isolamento e comfort acustico.L'immobile è dotato inoltre di una pratica cantina
Un immobile raffinato, pronto da abitare, situato in una posizione privilegiata a pochi passi dal centro e dai principali servizi, ideale per chi cerca qualità , funzionalità e uno stile di vita confortevole.
| Codice | 3441 |
| Categoria | Vendita |
| Tipologia | appartamento |
| Zona | LA SPEZIA - CENTRO |
| Vani | 5 |
| MQ | 130 |
| Ascensore | Si |
| Prezzo | € 430.000 |
| Classe energetica | In fase di rilascio |
